Byty Zelený Vrch Pelhřimov
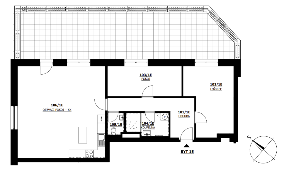
Byt 01-1E
Dispozice: 3+kk
Podlaží: 1.NP
Bytový dům: SO01
Orientace: SZ, SV
Karta bytu: pdf
Cena: Na dotaz
Stav: Volný
Užitná plocha bytu: 90,20 m²
Celková podlahová plocha bytu*: 98,30 m²
* Podlahová plocha ve smyslu nařízení vlády č.366/2013 Sb., tedy půdorysná plocha všech místností jednotky včetně půdorysné plochy všech svislých nosných a nenosných konstrukcí uvnitř jednotky.
K bytu náleží:
Sklepní kóje ozn. 21 – 4,50 m²
Terasa – 53,00 m²
Galerie
Harmonogram výstavby
3. Etapa – dům SO01
podzim 2025
Zahájení výstavby
jaro 2026
Dokončení hrubé stavby
jaro 2027
Dokončení kompletní stavby vč. interiérů
jaro 2027
Kolaudace + dokončení terénních úprav
léto 2027
Předání bytů
Kde najdete Bytové domy Zelený Vrch?
Byty Zelený Vrch
49.4372850N, 15.2352383E
Kontakt
Zaujal Vás náš projekt
a chcete se o něm dozvědět více?
Kontaktujte nás prostřednictvím formuláře níže, napište nám na e-mail info@vhstdevelopment.cz nebo nám zavolejte na +420 728 144 090.
Odesláním tohoto formuláře dávám souhlas ke zpracování mých osobních údajů dle zásad GDPR.









